Направи си сам кухненско окабеляване - как да се изчисли, избере и направи?

В модерните къщи и апартаменти кухнята е най-заредена по отношение на консумацията на електроенергия. Това не е изненадващо за никого, всички знаем, че почти половината от домакинските електрически уреди са концентрирани тук. Когато планирате ремонти, електрическото окабеляване в кухнята трябва да бъде основен приоритет. Необходимо е точно да се изчислят натоварванията, според изчисленията да изберете проводниците и превключващите устройства. Така че по-късно не се получава така - котлонът, фурната, аспираторът работят и решихте да загреете електрическата кана и това е, машината изгасна, електричеството изтича.
Някои домакински уреди са толкова мощни, че изискват отделна линия от разпределителното табло и се свързват чрез отделна машина.
Веднага бих искал да предупредя тези, които закупиха апартамент в къщи, построени от Съветския съюз. Може би в други стаи (спалня, зала) е достатъчно да смените превключващите устройства и да инсталирате няколко допълнителни гнезда. Но окабеляването в кухнята трябва да бъде инсталирано напълно ново, дори не се опитвайте да ревизирате старата.
съдържание
Подготвителна работа
Има една прекрасна поговорка: „Добре планирана - наполовина свършена“. Следователно електрическото окабеляване в кухнята започва с проект. Планирайте къде да инсталирате мебели и кухненски уреди.
Опитайте се да определите възможно най-точно какви домакински уреди ще използвате и каква мощност са те. Сега изчислете максималния товар, за това добавете мощността на всички електрически уреди, свързани едновременно (не забравяйте да добавите осветление тук). Ще трябва да надградите върху получената цифра, когато избирате напречното сечение на проводниците и номиналния ток на превключващите устройства.
Ще бъде ли достатъчно еднофазно напрежение за вас? Най-вероятно този проблем няма да възникне за обикновените апартаменти. Но ако имате огромна селска къща или апартамент на много нива и те разполагат с кухни, оборудвани с всички съществуващи уреди и отопляеми подове, тогава ще трябва да доставите трифазна електрическа мрежа. Във всеки случай, за безопасността на електрическото окабеляване е препоръчително да не включвате всички налични кухненски уреди едновременно.
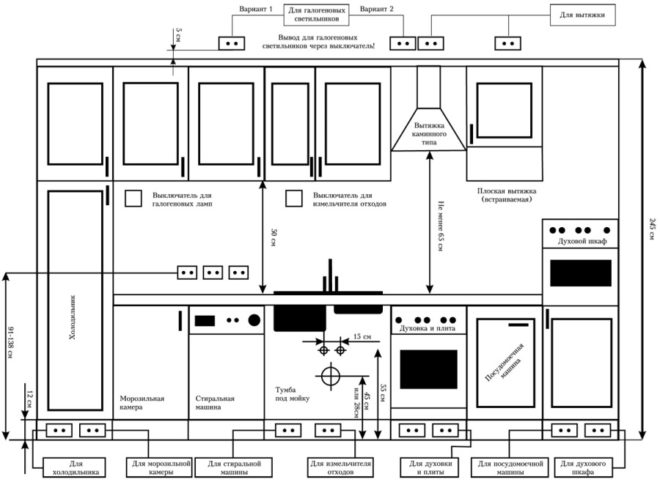
Препоръчително е да разделите цялото кухненско оборудване и, съответно, окабеляването на няколко маршрута. Всеки ще произхожда от входа на кухнята, тоест от разклонителната кутия. Краят на всеки клон е крушка или гнездо.
Всеки клон на изхода може да има различен брой изходи, всичко зависи от това кои домакински уреди ще бъдат свързани към тях - с ниска мощност (от 0,5 до 0,8 кВт) или мощни (от 0,9 до 2 кВт). За да свържете оборудване с ниска мощност, можете да инсталирате изходен блок; за всеки мощен домакински уред ще трябва да монтирате изход за хотел.
Ако мощността на консуматора на електроенергия надвишава 3 кВт (бойлер, бойлер или система за подово отопление), тогава вместо изхода се инсталира автоматична машина.
Това разделение изглежда така:
- Осветително клонче, от което ще се захранват всички осветителни елементи в кухнята.
- Разклонете се към системата "топъл под".
- Клон за изходния блок, който ще включва домакински уреди с ниска мощност (тостер, миксер, микровълнова фурна, сокоизстисквачка, хранителен комбайн и др.). По правило такъв блок от изходи е разположен върху работната стена на ниво 1 м от пода. Обърнете внимание, че това ще включва техники, които се използват периодично, а не през цялото време.
- Отделни клонове за свързване на мощни домакински уреди (електрическа фурна, котлони, пералня или съдомиялна машина).
- Клон за двойно гнездо, където например ще бъдат свързани хладилник и аспиратор.
Опции за разпространение на гнезда на видео:
От общото разпределително табло до кухненското помещение е необходимо да се води входен кабел от подходяща секция, който според техническите си характеристики ще издържи натоварването на едновременно включени домакински уреди. Кабелът се подава в разклонителната кутия и там се превключва с изходящите клонове.
Елементи на кухненското окабеляване
Диаграмата за окабеляване на кухнята включва следните основни елементи:
- разпределителна кутия;
- електрически кабели и проводници;
- ключове и контакти.
Проводниците могат да бъдат положени по открит и скрит начин, но най-често в кухните те са скрити под вътрешната украса. Не им се налагат естетически изисквания, важно е те да имат безопасност, достатъчна електрическа проводимост и необходимите характеристики.
Гнездата и превключвателите са разположени по стените, което означава, че те трябва да бъдат безопасни, функционални, а също така естетически да се вписват в стила и дизайна на кухнята.

Както можете да видите, едно от важните условия за елементите на окабеляването е безопасността. Следователно всички кухненски електрически уреди трябва да са достатъчно изолирани.
Правила за поставяне на кухненски контакти
Окабеляването в кухнята може добре да се сглоби на ръка, важно е само да се вземат предвид всички изисквания за тези конкретни помещения. Има особено много нюанси при поставянето на търговски обекти. Много от тях са ясно показани във видеото:
Обикновено се монтират на височина 25-30 см от пода. Но в кухнята тази цифра може да бъде най-разнообразна, тъй като не винаги е удобно да свържете домакински уред на такова място. Много често няколко изхода или изходящ блок се поставят над така наречената кухненска престилка (на работната стена) на височина 100-110 см от пода.
- Забранено е да се монтират гнездата на място, където влагата може да влезе в тях (над или под мивката, зад съдомиялната машина, близо до печката).
- Ако по някаква причина не можете да задържите разстоянието от 25-30 см от пода за изхода, тогава знайте, че можете да го намалите, ако е необходимо. Но най-малко 10 см трябва да останат между изхода и пода, в противен случай влагата ще влезе в него при мокро почистване на стаята.
- Разстоянието от електрическото устройство до електрическия контакт е сведено до минимум. В противен случай често има такива случаи, когато хладилникът е в един кухненски ъгъл, а изходът за него е напълно противоположен.
- Можете да поставите гнезда вътре в шкафовете, под работния плот. За това се правят дупки в задната част на мебелните стени за превключване на устройства. Това ще спести място и няма да наруши цялостния вид.
- Никога не монтирайте контакти, където има възможност за отопление (зад фурната, хладилника, електрическата фурна).
- Забранено е поставянето на контакти в близост до газови печки.
Що се отнася до дизайна, можете да използвате надземни и вградени гнезда. За да ги инсталирате по време на ремонта, се правят дупки, към които се поставят канали (канали в повърхността на стената). В дупките се поставят гнезда, в тях са инсталирани гнезда, а в каналите се полагат проводници.
За надземни гнезда не е необходимо да пробивате или изтривате нищо, те се монтират под плотове или върху стените на мебелите.
Ключове
Използвайки превключвателите, можете да контролирате не само осветлението в кухнята, но и вентилатора на изгорелите газове. Тоест, качулката има проводник с щепсел, който на теория трябва да бъде включен в гнездо и да задвижва вентилатора. Можете да извадите щепсела и на мястото на контакта да монтирате превключвател, който стартира и спира качулката.
За осветителните тела е по-добре да поставите превключвател с два бутона, единият ключ от който ще включи общото осветление, а вторият задно осветление.Възможно е да инсталирате още един обикновен превключвател на работната стена, с помощта на който ще бъде включено осветяването само на работното място.
Общият превключвател е монтиран на входната врата, на височина 80-90 см от пода.
Колко жици са ви необходими?
Окабеляването в кухнята ще изисква много кабел и проводник. По-удобно е да планирате и изчислите всичко правилно в празна стая.
- Начертайте етажен план за вашите мебели и уреди.
- Помислете за местоположението на контактите в близост до уредите.
- Маркирайте на тавана, където ще бъде основната светлина и допълнителното осветление.
- На стената отгоре (на разстояние 15-20 см от тавана) маркирайте мястото за монтаж на разклонителната кутия. Начертайте каква пътека ще поеме въвеждащият кабел от общия панел на апартамента.
- От разклонителната кутия начертайте телени пътеки направо по стените до изходи, превключватели и светлини. Не забравяйте, че те могат да бъдат само хоризонтални или вертикални, не е позволено „косо“ да се пестят материали.
- На стените на вашата кухня получавате визуална диаграма, вземете лента в ръцете си и измерете необходимото количество тел.
Естествено, не купувайте проводници от край до край, не забравяйте да вземете предвид предлагането за рязане на жилата. За осветление вземете тел с медни проводници с напречно сечение 1,5 мм2, за захранване на контакти от 2,5 до 4 мм2.
Отваряне на кухненски кабели
За отворен тип окабеляване ще ви трябва разклонителна кутия и устройства за превключване на открито. Те се прикрепят директно към повърхностите на стената.
Кабелните канали се полагат по очертаните линии на тавана и стените, техните крепежни елементи трябва да се правят на всеки 30-50 см, всичко зависи от това колко гладки са повърхностите на стената във вашата кухня. Пластмасовите кутии са прикрепени към бетон с дюбели-дюбели, самонарезни винтове са подходящи за тухлени или пенобетонни стени.
Основният недостатък на отвореното окабеляване в кабелните канали е, че цялата кривина на стените се вижда веднага.
Проводниците са положени в кабелни канали, те се подават към контакти, превключватели и разклонителна кутия. След като всички връзки са направени, кабелните канали се затварят с капаци на капака с фиксиращи канали.

Предимството на отворен тип окабеляване в кухнята е, че ще бъде по-лесно да го преработите, ако искате да промените местоположението на домакинските уреди или в случай на някаква повреда в мрежата. Пластмасови кабелни канали вече могат да бъдат избрани в магазините за всеки цвят на кухнята, като такива кутии с оцветяване в дърво изглеждат особено хубави.
Закрито окабеляване на кухнята
Трябва да се свърши много мръсна, прашна и шумна работа, преди да се направи скритото окабеляване. На местата, където ще бъдат инсталирани превключващи устройства, трябва да се пробият дупки. Това се прави с длето и чук, бормашина със специални приставки за бетон или тухла. В дупките, направени с помощта на мазилка или алабастър, кутиите за гнезда са фиксирани.
За маршрутизиране на проводниците в стените се изрязват специални канали, наречени канали. За тази цел има специален инструмент - преследвач на стени. Ще бъде много удобно, ако успеете да наемете такова устройство, защото е скъпо да го купите. Но той е много ефективен при употреба.

Първо, можете да регулирате ширината на канала, който ще бъде изрязан, в зависимост от това колко проводници ще бъдат в него и в каква секция. Второ, много модели веднага са оборудвани с прахосмукачка, която ви позволява да работите спокойно, без да замърсявате въздуха на работното място.
За бързо и надеждно фиксиране на проводниците в каналите използвайте мазилка или алабастър.
Не забравяйте, че такива проводници и комутационни устройства не могат да се пренареждат от място на място. Ето защо, първо помислете за всички плюсове и минуси и едва след това вземете решение за себе си - какъв тип окабеляване да изберете за кухнята.
Забележка! Стените, в които са положени проводниците, трябва да са сухи. Ако изведнъж се окаже, че повърхността на стената е мокра, спрете всички работи по окабеляването и изсушете стената в продължение на няколко дни.
Има още няколко нюанса във видеото за кухненското окабеляване:
На пръв поглед на някого ще изглежда, че електрическото окабеляване в кухнята със собствените си ръце е напълно в рамките на тяхната сила. Но това не е така, опитът и знанията на професионалист са необходими тук, за да се избегнат впоследствие пожари, пожари или наранявания на човек от токов удар. Свържете се с професионален електротехник или поне се консултирайте с тях и тогава всички електрически уреди във вашата кухня ще работят надеждно.




