Направи си сам монтаж на електрическо окабеляване в апартамента - инструкции стъпка по стъпка

Ако купувате апартамент в стара къща или в нова сграда, там вече ще се монтира електричество и ще бъдат свързани контакти с превключватели. И преди да купите недвижими имоти, не можете да повлияете по никакъв начин на тяхното местоположение. Но веднага щом станете собственик на жилище, имате право да преработите окабеляването в апартамента със собствените си ръце по съвсем различен начин. Разбира се, това е дълъг, сложен и финансово скъп процес. Опитвайки се по някакъв начин да спестите пари, мнозина се питат - възможно ли е сами да превърнем цялата електрическа част в ново жилище? В действителност, ако не сте мързеливи, добре сте учили в училище, приятели сте по физика и електротехника. Така че нашата тема е актуална днес - направете сами електрическо окабеляване в апартамента. Инструкции стъпка по стъпка от изготвяне на диаграма до инсталиране на проводници ще ви помогнат.
съдържание
Началото на цялата работа - схема

Бих искал да започна този раздел с аналогия. Каква е основата за добро, солидно жилище? Фондация, разбира се. Така че, един вид основа за надеждно и висококачествено захранване е добре проектирана схема на окабеляване в апартамент. Много хора напълно напразно пренебрегват това и има основателни причини за това:
- Първо, инсталирането на електрическо окабеляване в апартамента ще бъде много по-лесно за вас, когато схемата показва почти крайния резултат. Съгласете се, доста рядко е, когато на първия етап на ремонта хората могат да си представят какво ще се случи в крайна сметка. А с електрическа схема това е възможно, защото върху него ще се покажат всички превключващи устройства, осветителни елементи и стационарни домакински уреди.
- На второ място, схемата на електрическото окабеляване в апартамента ще ви помогне да съставите ясен план за изпълнение на работата - къде да започнете окабеляването, в коя посока да се движите, какво да оставите за последния етап.
- Трето, когато имате готово оформление на електрически елементи в апартамент, можете лесно да определите количеството материали - контакти, ключове, разклонителни кутии, кутии за гнезда, проводници, кабели.
- И най-важното, когато инсталационните и ремонтни дейности вече са приключили, ще имате схема на окабеляване в апартамента. Не го изхвърляйте при никакви обстоятелства. Ако трябва да пробиете дупка някъде в стената за картина или рамка за снимки, ще извадите веригата и ще видите какъв е пътят на проводниците, за да не се натъкнете на и да не повредите проводната сърцевина. Също така много от тях понякога залепват разклонителни кутии с тапети, за да не развалят външния вид на стаята. Всъщност това не може да се направи, но ако вече е запечатано, винаги можете да разгледате диаграмата, където се намира полето. Ако имате нужда от работа, отрежете парче тапет, получите достъп до кутията и след това го залепете отново.
Надяваме се, че сме ви обяснили по популярен и достъпен начин, че всичко в света на електричеството винаги трябва да започва с диаграма. Сега малко повече подробности как да го съставите правилно и какво трябва да се покаже на него.
Съставяне на диаграма
Преди да направите диаграма, трябва да се съберете с цялото семейство и да помислите внимателно къде ще бъдат разположени основните потребители на електрическа енергия във вашия апартамент:
- климатици;
- електрически котлони и фурни;
- Шайба;
- хладилник и фризер;
- миялна машина, микровълнова фурна;
- принудителна вентилация на изгорелите газове;
- отоплителни котли или бойлери.
Също така подредбата на мебелите, особено обемистите, играе важна роля. За да не се окаже така по-късно - ремонтите са завършени, мебелите са подредени, а гнездото е зад гардероба, който вече се е настанил на това място от много години. И тогава ще трябва да прибягвате до помощта на носачи, само по-рано, поне под килими, беше възможно да се скрият проводници, но сега това не е модерно, всичко е паркет и ламинат. Затова обърнете специално внимание на този въпрос.
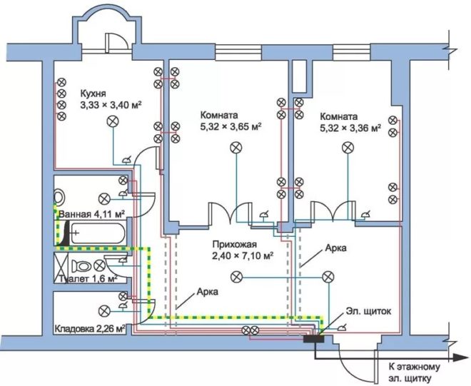
След това вземете хартия (за предпочитане в кутия), молив (за предпочитане няколко многоцветни), владетел. Начертайте с два екземпляра на хартия план на вашия апартамент с отвори за врати и прозорци, за да улесните, вземете технически паспорт и прехвърлете чертежа от там. Задайте сериен номер на всяка стая, например, ако имате схема на окабеляване в едностаен апартамент, нека изглежда така:
- Коридор (входно антре, зала).
- Баня.
- Кухня.
- Зала (хол).
Ако има повече стаи, съответно, можете да продължите по-нататъшното номериране - спалня, детска стая, спортна стая, също трябва да вземете предвид килерче, лоджия (ако също ще включите осветлението) и т.н.
Сега схематично покажете стационарни домакински уреди и мебели (под формата на квадратчета и правоъгълници) в един чертеж. Домакинските уреди могат да бъдат маркирани в червено, а мебелите в сиво. На втория чертеж маркирайте местата за инсталиране на превключващите устройства. Тоест, където в първата рисунка имате посочени домакински уреди, на втората на тези места ще има гнезда.
По същия начин на първия чертеж (където оборудването и мебелите) нарисувайте кръстове в жълто на местата, където са инсталирани лампи, бра, подови лампи, полилеи. Тук ще ви бъде удобно да видите - къде е леглото, там означава нощна лампа; където има диван или фотьойли, това означава брашно, под което можете да четете и т.н. След това прехвърлете всички тези крушки в електрическата верига. В същото време помислете и маркирайте местата за инсталиране на превключвателите. Представете си в съзнанието си в каква посока ще се отворят интериорните врати, така че по-късно превключвателите да не са зад тях.
Решете веднага, може би на някое място трябва да инсталирате изходен блок (най-често това се прави на работния панел в кухнята), независимо дали ще имате групово осветление или полилей с много следи в основното помещение, тогава ще ви е необходим превключвател с два бутона.
Маркирайте на диаграмата мястото, където ще се намира въвеждащото табло за апартамента.
Примери за това как правилно да се състави диаграма изглежда са на разположение, надяваме се, че няма да имате трудности с това. Сега нека разберем количеството материали.
Необходими материали
Изчислете необходимия брой превключватели и контакти според изготвените диаграми. Не забравяйте, че за всяко от тези превключващи устройства се нуждаете от кутия за гнездо, ако планирате да положите скрити електрически проводници в апартамента. Също така пребройте колко разклонителни кутии имате нужда.
За да изчислите броя на проводниците, най-добре е да прехвърлите превключващите устройства и разклонителните кутии, очертани на диаграмата, в реални стени. След това маркирайте стените, тоест в буквалния смисъл на думата, нарисувайте между тях пътеките на проводниците, измерете всичко с лента и пребройте общия брой. Имайте предвид, че окабеляването в апартамента се извършва стриктно по вертикални и хоризонтални линии, не трябва да има коси завои.
Според опита на професионални електротехници, за окабеляване на апартамент от три стаи закупете 100 м трижилен проводник с напречно сечение 1,5 мм2 (това ще бъде полагането на осветителни проводници в апартамента) и 100 м от трижилен проводник с напречно сечение 2,5 мм2 за захранване на контакти.
Мощните електрически уреди, като бойлер или котлон, обикновено се захранват от отделна линия от входната табла чрез отделна машина. За тях е по-добре да поставите трижилен проводник с напречно сечение от 4-6 мм2.
Друг важен нюанс, не забравяйте да броите жицата с марж за рязане на проводниците в ставите и връзките на превключващите устройства. Обичайно е да оставите доставка на проводник за контакти, ключове, лампи с най-малко 20 см. Ако планирате да спуснете таваните в бъдеще, след това увеличете доставката на тел за лампи до 50 см. Също така оставете захранване на тел около 50 см за монтажа на разпределителното табло.
Табло за разпределение
Направете самостоятелно окабеляването във всеки апартамент започва от разпределителното табло. Какъв е той? Това е един вид кутия, в която е монтиран електромерът и цялата защитна автоматика.
Какви щитове има?
Тази кутия е изработена от метал или пластмаса. Всяка опция има своите предимства. Пластмасовият щит е по-практичен, тъй като тежи малко, а освен това изглежда привлекателен и естетически приятен. Металната кутия е издръжлива и надеждна.
Според метода на закрепване, щитовете са с външен и вътрешен дизайн. Външният щит (нарича се още фактурата) е окачен на стената с помощта на самонарезни винтове или дюбели. Това значително улеснява инсталационната работа, но в същото време тази опция на щита заема свободно място в стаята. Вътрешен или вграден капак изисква инсталирането на специална ниша за стена, но тя не заема свободно пространство.
С какво е оборудван щитът?
Какво още е необходимо за инсталиране на таблото, освен самата кутия:
- Въвеждаща машина, тя защитава цялата мрежа от апартаменти, като изключва, ако е необходимо, захранващият кабел за апартамента идва към него.

- DIN шина е специална метална плоча, върху която е прикрепена цялата автоматика.

- След приключване на всички монтажни работи, ще бъде необходимо да поканите представител на енергийната компания за запечатване на електромера.

- Автобусите PE и N, върху които ще бъдат свързани всички неутрални и заземяващи проводници.

- Автоматични прекъсвачи, те ще защитят определена група пантографи от късо съединение чрез задействане при свръхтокове. Също така с помощта на автоматични машини ще бъде възможно принудително, ако е необходимо, да изключите една или друга линия от общата мрежа.

- Устройства с остатъчен ток (RCD), те не се монтират независимо, а са свързани след прекъсвачите. RCD изпълнява защитна функция в случай, че тялото на някое електрическо оборудване е захранвано. В такава ситуация RCD защитава човек от възможен токов удар. Можете да използвате комбинирана опция, която включва автоматична машина и RCD - диференциални автомати.

- Свързване на проводници или разпределителни гребени.
За да определите броя на машините, е необходимо да се изчисли и разпредели натоварването в апартамента.
Заредете се в апартамента
Модерен електротехник в апартамент включва огромно разнообразие от различни консуматори на електроенергия. Съгласете се, че домовете ни буквално са натъпкани с домакински уреди. Препоръчва се с правила и разпоредби, преди окабеляване в апартамента, да отделите осветителната мрежа и линията на търговски обекти от различни машини. Но като се вземе предвид текущото натоварване на апартаментната мрежа, е невъзможно да се засаждат всички домакински уреди на една линия.Препоръчително е равномерно да разпределите всичко в няколко вериги, захранвани от отделни машини.

Това разделяне има голяма практическа стойност. Представете си, че електрическото окабеляване в апартамента е повредено. Със собствените си ръце, без да се обадите на електротехник, решихте да го разберете, да намерите причината и да я отстраните. Ако всеки ред има своя собствена защита, лесно можете да намерите причината за аварийната ситуация (определете от изключеното положение на машината). И докато ремонтирате повреди по тази линия, всички останали потребители няма да останат без изтощение, тоест хладилникът ще продължи да се охлажда, а пералнята ще се измие.
Препоръчва се да изберете машини със следната мощност:
- за осветително натоварване - 10 A;
- за контакти - 16 A;
- за свързване на домакински уреди до 4,5 kW - 20 A;
- за влизане в апартамента - 50 А.
Как да разделите общото натоварване на апартаментите на групи?
Първо, препоръчително е да захранвате всички мощни потребители на електроенергия с отделна линия (пералня, бойлер, миялна машина, котлони и електрическа фурна, климатици).
Второ, би било добре да направите гнездата на всяка стая в отделни групи (детска, възрастна спалня, зала, кабинет). Ако това не се получи, във всеки случай кухненските контакти трябва да се захранват чрез отделна линия и автоматична машина, тъй като именно в кухнята има най-мощните домакински уреди (хлебопекарна, микровълнова фурна, кафе машина, електрическа кана, хранителен комбайн, пасатор и др.)

Захранването на банята трябва да се извършва от отделна група, тъй като тя принадлежи към опасно помещение по отношение на електрическата безопасност (т.нар. "Мокра" група).
Осветлението на апартамента се откроява като отделна група, но ще бъде много по-удобно, ако осветлението на всяка стая е разделено на групи.
Броят на необходимите машини и RCD ще зависи от това как групирате целия товар на вашия апартамент.
Монтаж на окабеляване
Остава да решите какъв тип окабеляване да изберете за вашия апартамент. Днес има два начина:
- Open. Това е, когато всички проводници ще преминат по повърхностите на стената, те са фиксирани в пластмасови кабелни канали (или канали). Такова уплътнение изисква много по-малко материални разходи и физически усилия, но има един съществен недостатък - външният вид на стаята не е съвсем естетичен. Изключение е полагането на специален кабел чрез порцеланови изолатори, когато дизайнът на апартамента е направен в ретро стил, той вече е много модерен и набира популярност.

- Скрит. С този метод проводниците се полагат в специални канали на повърхностите на стената (в канали). За да шлайфате, имате нужда от специални устройства, процесът отнема много време, отнема много време и усилия. Но всички водачи ще бъдат скрити.

Подготвителен етап
Според вашия проект маркирайте пътеките за проводниците по стените. За да направите всичко напълно правилно, направете го с лазерно ниво или опънат шнур. В таблото има брояч, а след него има машини по групи натоварвания. От тези машини проводниците трябва да стигнат до първата разклонителна кутия, а оттам вече трябва да се разпръснат по всички останали помещения и помещения. На входа на всяка стая трябва да се монтира собствена разклонителна кутия.

Маркирайте местата на контакти, ключове, разклонителни кутии по стените.
Има едно предупреждение за открития начин на полагане - стените трябва да са идеално плоски, така че пластмасовите кутии да лежат на повърхността на стената без изкривявания. В случай на полагане на порцеланови изолатори, това не е необходимо, леката кривина на стените няма да бъде толкова забележима.
За скритата версия трябва да направите жлебове по маркираните линии, като използвате резачка за преследване или шлифовъчна машина. Можете да използвате перфоратор, но тогава стробът няма да се окаже толкова идеално плосък.Перфораторът е подходящ за монтиране на отвори за кутии и кутии за гнезда, просто се нуждаете от специална дюза - резачка (корона) за бетон. Ако нямате такъв инструмент, ще бъде много скъпо да го купите, опитайте се да го наемете.
Отворена маршрутизация на проводниците
- Изрежете пластмасовите кутии, за да се поберат на маркираните линии. За целта използвайте строителен нож или ножовка.
- Фиксирайте кутиите към повърхностите на стената. Не препоръчваме да използвате лепило или двустранна лента, тази фиксация няма да продължи дълго. Най-добре е да закрепите кутиите с дюбели и винтове.
- Поставете проводниците в кутиите и затворете капаците. Краищата на проводниците бяха оставени, водещи към разклонителните кутии и превключващите устройства.
Скрито окабеляване
- Почистете подготвените канали от прах, това може да направите с обикновена метла или прахосмукачка.
- Поставете проводниците в каналите, препоръчително е първо да ги поставите в гофрирани тръби, направени от негорими материали.
- Закрепете електрическото окабеляване, поставено в каналите, с алабастър. Отначало фиксирайте само на няколко места, така че жицата да не изпадне. Когато завършите инсталацията напълно и проверите работата на цялата електрическа мрежа, тогава ще закрепите изцяло проводниците.
- Вкарайте краищата на проводниците в кутиите и разклонителните кутии.
- Също така, използвайки разтвора от алабастър, фиксирайте монтажните кутии и изводите на гнездото в подготвените отвори.
Последният етап
Не забравяйте, че преди да извършите каквато и да е работа, свързана с електричество, е необходимо да обезопасите работното място - отстранете напрежението и проверете за неговото отсъствие.
Остава само да свържем всичко. Инсталирайте контакти, ключове, светлини. Направете всички необходими връзки в разклонителните кутии.
Приложете напрежение и проверете работата на цялата система. Ако всичко работи правилно, можете да затворите каналите.
Както можете да видите, направете сами електрическото окабеляване в апартамента е съвсем реално. Надяваме се, че стъпка по стъпка инструкциите за изготвяне на диаграма, изчисляване на натоварването, инсталиране на щита и окабеляване ще ви помогнат да направите всичко правилно. Ако се съмнявате, по-добре е да потърсите помощта на специалисти.




