Къде да поставите гнездата в банята

Още преди началото на 2000 г. изходът в банята е забранен, което е посочено в разпоредбите на PUE. С появата на нови материали и методи за монтаж някои изисквания стават по-строги, докато други стават по-меки, в резултат на което изходът за банята, макар и с редица резерви, престава да попада в категорията на забранените решения.
съдържание
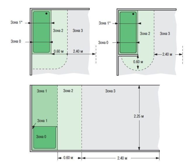
Зониране на баня в съответствие с изискванията на PUE

На първо място, въпросните резервации уреждат мястото, където е разрешено инсталирането на изход в банята. За целта се отбелязва в стаята, в която ще бъдат инсталирани банята, душ, умивалник или тоалетна - т.е. всеки обект, до който се подава вода през тръби.
- Всяко от местата за инсталиране се счита за така наречената "зона 0", в която инсталирането на гнезда е строго забранено. Той може да използва само онези електрически уреди, които са пряко предназначени за банята, са защитени от проникване на вода и се захранват от напрежение, не по-голямо от 12 волта.
- Повърхността на стената нагоре и надолу от нулевата зона се нарича "зона 1", в която също са изключени всякакви изходи, но е позволено да се свързват осветителни тела с степен на защита IP-x5, което позволява на устройството да издържа на поливане. Правилата не забраняват поставянето на котли тук, но на практика те само ще пречат.
- На разстояние от 60 см вляво и вдясно от размерите на първата зона има „зона 2”. Тук също е забранено инсталирането на гнезда, но е разрешено инсталирането на електрически уреди с клас на защита IP-x4, което позволява излагането на устройството на дъжд. Местоположението на зона 2 също зависи от наличието на неподвижна преграда между душа и останалата част от стаята. Ако е, тогава зоната се изчислява като кръг с радиус 60 см и се центрира в крайната точка на преградата.
- Разстоянието на 2,4 метра от границата на втората зона се нарича "зона 3", което се счита за относително безопасно разстояние до водоизточника. Тук е позволено да се инсталират 220 волтови гнезда с клас на защита от пръски IP-x4 и допълнително оборудвани с подходяща защита.

От тези правила става ясно, че ако в банята има душ кабина, а умивалник е разположен на метър от нея, тогава не можете да поставите изход между тях. В този случай е позволено да закачите бойлер, който се захранва директно от жица от електрическата мрежа или се включва в контакт, разположен в разрешената зона 3. Ако се използва осветление на огледалото, тогава осветителните лампи трябва да бъдат класирани за напрежение, не по-високо от 12 волта.
Къде другаде е разрешена инсталация
Има няколко любопитни допълнения към правилата за зоните, в които можете или не можете да поставяте търговски обекти. Всеки от тях не стига чак до тавана - височината на който и да е от тях е 2,25 метра. Това означава, че ако височината на тавана е 2,5 метра, тогава местоположението на контактите в банята може дори да е над зона 1, но на височина 2,3 метра. По този начин изискването за локализиране на окабеляването на 15 см от тавана се изпълнява допълнително.
Това на пръв поглед нелепо правило ви позволява да „излезете“ от ситуацията и да направите всичко според PUE, когато помещението е малко, а гнездата са необходими за стационарни устройства - същия котел и пералня.
Видове гнезда според нивото на устойчивост на влага
Дори ако изходът е разположен в правилната зона и според всички правила, той все още може да се напръска с вода или конденз, който неизбежно ще се появи в банята.Въз основа на това е необходимо да изберете водоустойчиви гнезда за банята, проводимите части на които са достатъчно защитени от проникване на вода.

На всеки изход производителят е длъжен да постави стандартната маркировка IP-XY, в която вместо XY ще бъдат поставени числа от 0 до 8. Първото от номерата показва защитата на механизма от различни обекти, попадащи в него, а второто показва нивото на неговата защита от влага:
- 0 - Контактите не са защитени от нищо - дори от случайни пръски.
- 1 - контактите няма да бъдат пръскани отгоре.
- 2 - Защита срещу дъждовен дъжд, когато наклонът на спрея не надвишава 15 °
- 3 - Устройството може да издържи силен дъжд с наклон на пръскане до 60 °
- 4 - Контактите са устойчиви на пръски от всички посоки.
- 5 - Това устройство може да се полива с маркуч.
- 6 - Защита на устройства, които могат да бъдат засегнати от вълната.
- 7 - Защита срещу краткотрайно потапяне на дълбочина до един метър.
- 8 - Напълно водоустойчиво устройство.
Банята изисква контакти и други електрически уреди с IP-x4 или по-висок клас на защита.
Изисквания за окабеляване и брой контакти
Най-мощните електрически уреди, за които в банята се монтира електрически контакт, са бойлер, пералня и сешоар. Те консумират около 1,5-3 киловата всеки, в зависимост от модела. Освен това тук могат да се използват устройства като кърлинг, електрическа самобръсначка и други подобни, които не се различават с висока мощност, но изискват отделна връзка.

Ако котелът не е свързан директно към мрежата (някои от тях могат да се захранват само по този начин), тогава във всеки случай са необходими отделни изводи за него и пералнята - най-добре е проводниците към тях да бъдат насочени към всеки отделно от входния панел (особено след като разклонителните кутии не трябва да се монтират в помещения с висока влажност). Също така, в близост до умивалника е необходим изход - малко вероятно е няколко устройства да бъдат свързани към него наведнъж, но е по-добре, ако е двойно.
В резултат на това не се налагат правила и разпоредби за броя на търговските обекти - той се избира в зависимост от това колко устройства се планират да бъдат включени.
Напречното сечение на проводниците, които ще бъдат положени в банята, се взема със скорост 2,5 mm² за контакти и 1,5 mm² за осветление - това трябва да е достатъчно с горната мощност на устройството. В противен случай напречното сечение на проводниците трябва да бъде избрано индивидуално.
PUE силно препоръчваме да поставите окабеляването по затворен начин - вътре в стената. Ако по някаква причина трябва да положите проводници по повърхността на стената, тогава първо трябва да използвате кабел със съответния клас изолация, и второ, да го положите в полиетиленова гофрирана тръба. Металът не може да се използва, тъй като в случай на късо съединение може да доведе до токов удар за човек.
Защита: заземяване, RCD и изолационен трансформатор
Изискванията на PUE ясно показват необходимостта от използване на защитни устройства за изходи в банята. Заземяването и RCD са задължителни, препоръчителният е изолационен трансформатор.
Заземителният проводник трябва да бъде свързан не само към изводи в банята, но и към всеки друг в апартамента или къщата. Това е гарантирана защита, която предпазва човек от въздействието на фазата върху тялото, което може да се появи върху металните части на корпусите на електрически уреди.
Прекъсвачът прекъсва захранването в случай на опасно претоварване в мрежата.
Устройството за остатъчен ток се задейства в случай, че възникне ток на изтичане, който възниква при къса фаза към кутията на устройството, свързан към гнездо с контакт за заземяване. Има начини за свързване на RCD без заземяване, но това защитно устройство работи най-ефективно, ако токът на изтичане трябва да отиде някъде.При правилно свързване и избор на защитното устройство максималният ток на изключване на RCD е 30 mA.
Последното от изброените устройства, въпреки полезността си, практически не се използва, тъй като изисква доста големи инвестиции както за закупуване на трансформатор, така и за неговата инсталация. Всъщност това е стандартен трансформатор, но той не увеличава или намалява напрежението, а го оставя непроменен. Защитните му функции се състоят във факта, че линията, която захранва, не е пряко свързана с общата верига и следователно в този случай няма обичайна човешка връзка със земята. В резултат на това ток на изтичане, който може да се появи върху тялото на електрически уред, когато фаза се пробие през него, няма да бъде опасен за човек.
Как се извършва инсталацията

С изключение на необходимостта от използване на водоустойчиви устройства, инсталирането на такъв изход в банята не се различава от стандартната инсталационна процедура. Ако се използва затворено електрическо окабеляване, тогава е необходимо предварително да се изчисли на кое място и как да се направят гнездата. В тези точки се пробиват дупки за кутии за гнезда и канали се нарязват в стената към тях, където ще се побере окабеляването.
Тъй като банята винаги е облицована с плочки, проводниците се поставят в получения отвор и местоположението му се измерва внимателно. Когато плочката е положена, в нея се пробива дупка, от която се отстранява жицата и на това място се монтира изход.
Ако довършителните работи вече са завършени, но е необходимо да се добави друг изход в банята, тогава се използва отворен тип електрическо окабеляване, което се полага в пластмасова гофрирана тръба или кабелен канал. Самите гнезда са завинтени с дюбели, за фиксиране кои дупки са предварително пробити в плочката.
Какъв е резултатът
Като се има предвид броят на съвременните електрически уреди, в банята е необходимо и гнездо. Основното в този въпрос е да изберете правилното място за неговото инсталиране, да изберете устройство с подходящ клас защита от влага и да осигурите защитата на самия човек от токов удар.
В случай, че електротехниците отвън са поканени да инсталират гнездата, не боли да ги попитате къде и как да инсталирате тези устройства. Ако майсторите не се интересуват къде да ги инсталират, тогава си струва да помислите за тяхната квалификация и необходимостта от получаване на такива услуги.